Das Baugebiet Buchwald sollte ursprünglich nach dem beschleunigten Verfahren gemäß §13b bebaut werden. Dieser Paragraph besagte, dass ein Baugebiet im Außenbereich einer Stadt ohne Umweltprüfung ausgewiesen werden kann mit dem Ziel, schnell bezahlbaren Wohnraum zu schaffen. Im Juli 2023 wurde dieser Paragraf vom Bundesverwaltungsgericht für illegal erklärt wegen der fehlenden Umweltprüfung und weil er damit gegen bestehendes Europarecht verstieß.
Nun soll im Regelverfahren gebaut werden, obwohl sich die deutsche Wirtschaft im Abschwung befindet und Bauzinsen und Materialkosten zu hoch sind. Bauen am Buchwald ist teures Bauen in Hanglage und wird keinen günstigen und sozialgerechten Wohnraum schaffen. Wohnungsnot besteht vor allem im Bereich des sozialen Wohnungsbaus, dem das Baugebiet sicher nicht nützen wird.
Geplant sind auf knapp 40.000 qm 37 Ein- bis Zweifamilienhäuser, 15 Kettenhäuser und fünf dreigeschossige Mehrfamilienhäuser mit jeweils 8-9 Wohnungen mit Tiefgaragen.
Die geplante Bebauung wird zu einer enormen Zunahme des Verkehrs von der Hillstrasse bis zur Schwarzhausstrasse führen. Hauptverkehrsrichtungen
Der Autoverkehr wird überwiegend über die Hillstrasse erfolgen, da dies der direkteste Weg zur B30 ist und die Einmündung der Hillstrasse in die Saulgauerstrasse auf Grund des hohen Tempos und der Unübersichtlichkeit an dieser Kreuzung sehr gefährlich ist. Die Hillstrasse ist schmal und hat rechts und links parkende Autos. Zu den Hauptverkehrszeiten muss in der Hillstrasse mit stockendem Verkehr und Stau gerechnet werden, was zu Abgasemissionen und Lärm für die Anwohner führt. Besorgte Bürger haben bereits mehrfach Bürgermeister Burth und den Gemeinderäten diese Problematik vorgetragen, ihre Bedenken sind jedoch zurückgewiesen worden und blieben unberücksichtigt. Das Wohlbefinden der Anwohner findet keine Beachtung!
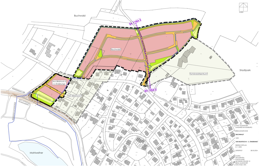
Bitte öffnen Sie auch den Bauplan mit Legende in der Fassung vom 16.09.2024 , Übersichtsplan Bauplan Buchwald und Bildstock (Bild oben)
Das geplante Baugebiet wird als klimaneutrales Projekt beworben, da Photovoltaik und Erdwärmenutzung zur Anwendung kommen sollen. Doch Wärmepumpen und Solardächer machen noch kein CO2-neutrales Baugebiet aus. Dazu gehörte zumindest die zusätzliche Vorschrift nachhaltiger klimaneutraler Baustoffe wie Holz anstelle von Beton und Glas sowie ein klimaneutrales Mobilitätskonzept.
In Wahrheit wird durch das geplante Baugebiet am äußersten Rand der Stadt die CO2- Belastung für ganz Aulendorf infolge des zunehmenden Verkehrs und durch den Verlust CO2-absorbierender Böden steigen. Das Auto wird das Hauptfortbewegungsmittel sein.
Versiegelter Boden kann kein CO2 ( Klimareport) mehr aus der Atmosphäre aufnehmen, was oft unterschätzt wird. Die organische Substanz des Bodens besteht etwa zu 50% aus Kohlenstoff und enthält mehr Kohlenstoff als die Atmosphäre und die gesamte Vegetation der Erde. Nur die Ozeane sind ein noch größerer Kohlenstoffspeicher. Der Kohlenstoff wird dem Boden von den Pflanzen geliefert. Sie entziehen der Atmosphäre durch Fotosynthese CO2 und bauen es in ihre Zellen ein. Abgestorbene Pflanzenteile landen im Boden und werden von Bodenorganismen zu Kohlenstoff abgebaut.
Wo Felder und Wiesen der Bebauung weichen müssen, wird dieser Mechanismus zerstört. Dies führt zu langfristigen Klimafolgen lokal, regional und global. Landnutzung spielt eine zentrale Rolle im Klimasystem. Klimaforscher sind sich weltweit darüber einig, dass im Interesse der Menschheit alle Anstrengungen auf den bedrohlichen CO2-Anstieg und die Klimaerwärmung fokussiert werden müssen Versiegelter Boden nimmt kein Wasser mehr auf. Dafür absorbiert er aber mehr Wärme. Wo Fläche versiegelt wird kommt es zur Erwärmung.
Durch Versiegelung bildet sich weniger Grundwasser und Starkregen führt schneller zu Hochwasser, weil er nicht versickern kann. Bodenversiegelung begünstigt Extremereignisse.
"Es regnet, es regnet, das Wasser steigt an - aber schuld daran ist nicht höhere Gewalt. Sondern wir Menschen mit unserer Siedlungspolitik und Bodenversiegelung". Gerhard Matzig, Süddeutsche Zeitung vom 17.09.2024, Feuilleton.
Siehe auch Buchempfehlung zum Zusammenhang von Bodenkultur, Bewirtschftungs-Unkultur und Natur.
Stadtplaner warnen davor, Frischluftschneisen zuzubauen, die gerade in Zeiten steigender Temperaturen wichtig für das Klima in der Stadt sind.
Das geplante Baugebiet am Buchwald ist landwirtschaftliche Nutzfläche der höchsten Kategorie ( Vorrangflur Stufe 1, Bodenzahlen 62 und 63 ). Der Wunsch der Menschen nach gesundem regionalen Essen und Biolebensmitteln steigt von Jahr zu Jahr. Die Biolandwirtschaft gewinnt immer mehr an Bedeutung, ist aber besonders flächenintensiv. Daher brauchen wir in Zukunft jeden Quadrat-meter Ackerboden. ( BUND Baden-Württemberg Flächenschutz

Ein Teil des geplanten Baugebiets besteht aus einer Wiese, die mit ihrer Vielfalt an Wildkräutern und Blüten für unsere Insekten lebenswichtig ist. Das gesamte Baugebiet bietet Wildtieren, Wiesen- wie Waldbewohnern, Deckung und Nahrung. So wird zum Beispiel regelmäßig eine Schleiereule gesichtet, die nun mit vielen anderen Tieren verdrängt wird und ihren Lebensraum verliert. Schleiereulen sind in Deutschland selten geworden.
Ein weiteres Beispiel ist der Rotmilan: Baden - Württemberg beherbergt die größte Population dieses Greifvogels. Er benötigt zum Nahrungserwerb bestellte Ackerflächen und Wiesen. Ein Verlust von Futterflächen ist für den Bestand ungünstig, zumal die Ausbaupläne der Windkraft (2% der Landesfläche) ihm von anderer Seite zu schaffen machen werden.
Es wird eingewendet, dass es ja nur Intensivacker und Maisanbaufläche sei. Gerade der Mais bietet vielen Tieren ab Juli, wenn die andere Vegetation geerntet ist, ein ideales Rückzugsgebiet. Rehwild, Schwarzwild, Hasen und Füchse finden sich ein.
Studien der Aulendorfer LAZBW (Landwirtschaftliches Zentrum Baden Württemberg) haben ergeben, dass sich entgegen den Erwartungen in Maisfeldern ein reichhaltiges Insektenleben entwickelt. Mais, Raps und andere Feldfrüchte stellen für Bienen eine wichtige Nahrungsquelle dar.
Das Baugebiet trägt zum weiteren Verlust der Artenvielfalt bei.


Das Buchwaldgebiet dient den Einwohnern und Gästen als leicht erreichbares Wander- und Erholungsgebiet. Der Weg durch das geplante Baugebiet gehört zum Wanderwegenetz. Aulendorf als Klinikstandort wirbt mit seinen schönen Landschaften. Durch das geplante Baugebiet wird das grüne Band vom Stadtpark bis zum Wald mit seinen Aussichtspunkten zerschnitten.
Die vorgesehene Bebauung mit Mehrgeschosswohnungen zerstört den Blick sowohl auf den Wald als auch ins Schussental und auf die Alpen.
Die geplante Bauweise aus Beton und Glas, laut Architektin Frau Kasten am 20.12.21 wie am Bahnhof`an der Waldseer Strasse, wirkt am Waldrand wie ein Fremdkörper.Fakt ist, die Stadt sieht sich unter dem Druck, möglichst viele von Familien bezahlbare Wohnungen zu schaffen. Fakt ist aber auch, in der Stadt gibt es städtische und private Flächen, sogar im Stadtkern. Es gibt außerdem zahlreiche dringend sanierungsbedürftige und leerstehende Häuser und Gewerberäume.
Es besteht somit großes Potential, über Neubau, Aufstockung, Erweiterung und Sanierung den Wohnungsbau und die Innenstadt in ihrem gesamten Erscheinungsbild weiterzuentwickeln. In bestehenden Bauten und auf bereits versiegelten Flächen kann bezahlbares Wohnen realisiert werden! Diese Art zu Bauen sollte von der Stadt vordringlich gefördert werden.
Es wurden in den letzten Jahren viele neue Wohnungen in Aulendorf geschaffen wie am Stadtpark oder in der Waldseer Strasse. Allerdings wurden diese Bauprojekte an Investoren und Großbauunternehmen delegiert, deren Interesse ausschließlich auf Rendite, nicht aber auf das von der Stadt zu wahrende Interesse der Bürger ausgerichtet ist. Eigene Konzepte des Bauamts zur Stadtentwicklung und-gestaltung liegen bisher nicht vor. Dabei stellt die Landesregierung Baden- Württemberg fachliche und finanzielle Unterstützung zur Verfügung, wenn Kommunen konkrete Entwicklungskonzepte für die Innenentwicklung ihrer Stadt vorlegen.
So entstehen überall in Aulendorf betonmonotone Wohnblöcke, die mit dem Ziel der Gewinnoptimierung gebaut werden ohne Berücksichtigung des Charakters der Stadt und der Bedürfnisses der Bewohner nach dem Bau heimeliger Wohnquartiere, wo statt Anonymität soziales Miteinander gelebt werden kann.
Der Wunsch nach einem Eigenheim ist bei jungen Familien ungebrochen. Fakt ist aber, dass die Grundstücke kleiner sind als früher wegen der Verteuerung und Verknappung von Grund und Boden. Neue Wohngebiete zeichnen sich durch Sichtschutzmauern zur Wahrung der Privatsphäre aus. Der gewünschte Garten ist oft nur monotones Abstandsgrün. Ein neues Eigenheim `im Grünen` ist in Wahrheit zum Luxus für Millionäre geworden.
In Aulendorf gibt es viele betagte Hausbesitzer, die auf Grund fehlender Alternativen ihr Haus nicht an junge Familien weitergeben können. Wer Haus und Garten besitzt, verlässt dieses nur für eine attraktive und gleichzeitig bezahlbare Wohnung. Solche Wohnungsangebote für ältere Menschen fehlen in Aulendorf komplett.
Familien mit Kindern haben damit wenig Chance, ein bezahlbares älteres Haus mit Garten zu erwerben, das sie nach ihren Vorstellungen sanieren und umbauen können.
Die Erschließung des Baugebiets ist mit hohen Kosten verbunden und erfordert auch
die Erweiterung der Infrastruktur (Kitas, Klassenräume, Freizeitangebote). Es müssen
Folgekosten für Ver- und Entsorgung, Unterhalt der Straßen und Umweltfolgekosten einkalkuliert werden. Diese Kosten tragen alle Bürger von Aulendorf. Bisher wurde ihnen keine Kosten- Nutzenrechnung vorgelegt. Es stellt sich die Frage der Wirtschaftlichkeit des Baugebiets. Inv-bw/flächenfraß
Für die Einfamilienhäuser am Buchwald interessieren sich viele nicht an-
sässige Menschen, die zur Arbeit nach Ulm, Biberach, Ravensburg und
Friedrichshafen pendeln und für die Aulendorf nur Schlafstadt sein wird.
Es liegt für das Baugebiet kein Flächennutzungsplan vor. Es handelt sich um landwirtschaftliche Fläche, die bis zu dieser Bauplanung nie für die weitere Stadtentwicklung vorgesehen war- vermutlich weil früheren Mandatsträgern die landschaftliche und landwirtschaftliche Wertigkeit des Gebiets bewusst waren.
Für das Baugebiet ist eine Änderung des Flächennutzungsplans erforderlich und die Versiegelung der Fläche von 4 ha muss kompensiert werden.
Die jetzige Planung sieht als Ausgleichsfläche den Verzicht auf eine Bebauung am Römerberg vor, wo sich eine Streuobstwiese befindet, die ohnehin als Wohnbaufläche heutzutage nicht mehr genehmigt würde, aber noch im Flächennutzungsplan für eine zukünftige Bebauung steht. Diese Fläche von 1,2 ha würde aus dem Flächennutzungsplan entnommen werden. Gleiches gilt für einen Acker neben dem Stadtpark mit 2,8 ha. Diese Flächen würden damit vorerst weiter wie bisher bestehen bleiben. Dies ist keine Kompensation! Wenn am Buchwald versiegelt wird, müsste dafür an anderer Stelle entsiegelt werden oder es müssten aus ökologisch minderwertigen Flächen höherwertige entstehen.
Die Landesregierung erklärt ausdrücklich, dass Städtebau und -entwicklung eine gemeinsame Sache von Bürgern und Mandatsträgern ist und verlangt Teilnahme und frühzeitige Transparenz. Hierfür gibt es sogar Zuschussangebote vom Land, die leider nicht genutzt werden.
Zurück zur Startseite Weiter zu Alternativlösungen